HCII Iompróir Creasa Beag
Cat:Iompróir crios a chasadh
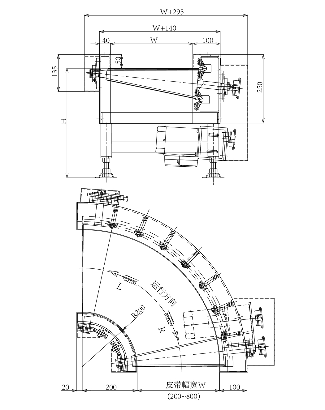
Tríd an gcomhoibriú idir an roth treorach agus an t -iarnród treorach, is féidir an crios a tharr...
Ardstruchtúr, feidhmíocht ardcháilíochta, éasca le húsáid, iontaofacht ard agus marthanacht.
Is trealamh iompair coitianta é an meaisín casadh casadh, a úsáidtear go príomha chun ábhair a aistriú ó líne iompair amháin go dtí an t -iompróir crios cúlú 90 céim nó 180 céim. Is éard atá ann ná comhpháirteanna ar nós criosanna, frámaí, rollóirí tiomána, rollóirí cúlú, pailléid ualach, rollóirí fillte, agus feistí teannais. Áirítear le hábhar crios iompair an mheaisín casadh crios ábhair éagsúla amhail PVC, PU, PVK, srl. Chomh maith le bheith in úsáid chun gnáthábhair a chur in iúl, is féidir leis iompar ábhair a bhfuil riachtanais speisialta acu amhail friotaíocht ola, friotaíocht creimthe agus alcaile, agus frith-statach.

Tríd an gcomhoibriú idir an roth treorach agus an t -iarnród treorach, is féidir an crios a tharr...
Tríd an gcomhoibriú idir an roth treorach agus an t -iarnród treorach, is féidir an crios a tharraingt agus a threorú le rith.
Gnéithe: Costas íseal, ualach solais agus luas íseal.
Gné chaighdeánach
HCII-S
| Leithead an Chreasa | 200 | 300 | 400 | 500 |
| Leithead an iompair | 520 | 620 | 720 | 820 |
| An uillinn | 90 | Mótarchumhacht | 90W 、 120W 、 200W |
| Airde | 270 go 1100 troigh ar airde le | Cumhacht | AC100V (aon chéim) · AC200V (aon chéim) · AC200V (trí chéim) |
| Luas | Luas seasta/athraitheach | Críoip | Crios polúireatán |
| Cumas | 10kg/tacar (nuair a bhíonn ualach scaipthe go cothrománach) |
De réir mar a chruthaíonn earraí a chruthaíonn earraí, déan 40% de na sonraí cumais a mhaolú le do thoil.
HCII-M
| Leithead an Chreasa | 300 | 400 | 500 | 600 |
| Leithead an iompair | 680 | 780 | 880 | 980 |
| An uillinn | 90 | Mótarchumhacht | 200W 、 400W |
| Airde | Sonraigh le do thoil, tá na cosa roghnach | Cumhacht | AC200V (trí chéim) |
| Luas | Luas seasta | Críoip | Crios polúireatán |
| Cumas | 40kg/tacar (nuair a bhíonn ualach scaipthe go cothrománach) |
De réir mar a chruthaíonn earraí a chruthaíonn earraí, déan 40% de na sonraí cumais a mhaolú le do thoil.
Luas crios hcii-s
| Cóimheas | Luais luais | Luas seasta 50/60 (Hz) (m/min) | Luas Níl | Luas athraitheach 50/60 (HZX (m/min) |
| 1/180 | T1 | 16./1.9 | H1 | 0.11 ~ 2.1 |
| 1/2050 | T2 | 1.8/2.2 | H2 | 0.13 ~ 2.5 |
| 1/2020 | T3 | 2.3/2.8 | H3 | 0.16 ~ 3.1 |
| 1/90 | T4 | 3.1/3.7 | H4 | 0.21-4.2 |
| 1/75 | T5 | 3.8/4.5 | H5 | 0.25 ~ 5.0 |
| 1/60 | T6 | 4.7/5.6 | H6 | 0.31 ~ 6.2 |
| 1/50 | T7 | 5.6/6.7 | H7 | 0.38 ~ 7.5 |
| 1/36 | T8 | 7.8/9.4 | H8 | 0.52-10.4 |
| 1/30 | T9 | 9.3/11.2 | H9 | 0.63 ~ 12.5 |
| 1/25 | T10 | 11.3/13.5 | H10 | 0.75 ~ 15.0 |
| 1/18 | T11 | 15.6/18.7 | H11 | 1.04 ~ 20.8 |
| 1/15 | T12 | 18.8/22.5 | H12 | 1.25 ~ 25.0 |
| 1/12.5 | T13 | 22.5/27.0 | H13 | 1.50 ~ 30.0 |
Luas crios hcii-m
| Cóimheas | Luais luais | Luas seasta 50/60 (Hz) (m/min) |
| 1/2020 | T1 | 15/18 |
| 1/90 | T2 | 20/24 |
Ríomh luais an luais sheasta: Luas rothlaithe 1500/1800rpm (50/60Hz), sorcóir tiomána ф82.3, éifeachtúlacht tiomána: 95%
Ríomh luais ar luas athraitheach: luas rothlaithe 2000rpm (50; 60Hz), sorcóir tiomána ф82.3, éifeachtúlacht tiomána: 95%
Drawing3333

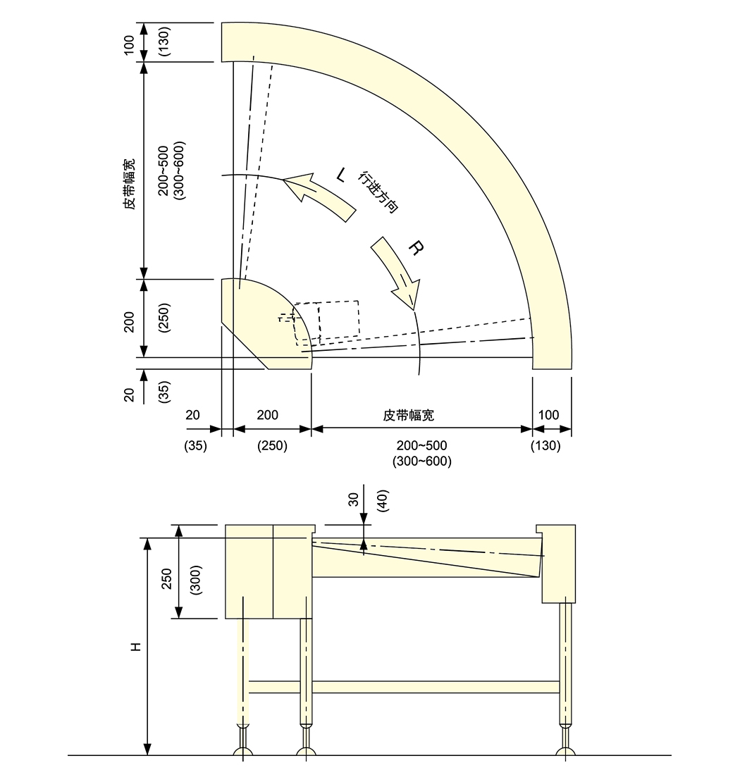
Tríd an gcomhoibriú idir an roth treorach agus an barra treorach, tarraingítear an crios agus tre...
Tríd an gcomhoibriú idir an roth treorach agus an barra treorach, tarraingítear an crios agus treoraítear é a rith.
Gnéithe: Torann íseal, luas ard agus fiú fórsa crios.
Gné chaighdeánach
| Leithead an Chreasa | 200 | 300 | 400 | 500 | 600 | 700 | 800 |
| Leithead an iompair | 520 | 620 | 720 | 820 | 920 | 1020 | 1120 |
| An uillinn | 90 | Mótarchumhacht | 200W 、 370W 、 750W |
| Airde | 380 go 1100 troigh ar airde le | Cumhacht | A (AC110V aon chéim amháin) B (AC200V aon chéim amháin) C (AC200V/380V trí chéim) |
| Luas | Luas seasta | Críoip | Crios polúireatán |
| Cumas | 100kg/tacar (nuair a bhíonn ualach scaipthe go cothrománach) |
De réir mar a chruthaíonn earraí a chruthaíonn earraí, déan 40% de na sonraí cumais a mhaolú le do thoil.
Luas an chreasa
| Cóimheas | Luais luais | Luas seasta 50/60 (Hz) (m/min) | Luais luais | Luas athraitheach 50Hz (m/min) |
| 1/180 | T1 | 1.6/1.9 | H1 | 0.09-1.7 |
| 1/2050 | T2 | 1.9/2.3 | H2 | 0.1-2.1 |
| 1/2020 | T3 | 2.4/2.9 | H3 | 0.13-2.6 |
| 1/90 | T4 | 3.2/3.8 | H4 | 0.17-3.5 |
| 1/75 | T5 | 3.8/4.6 | H5 | 0.2-4.2 |
| 1/60 | T6 | 4.9/5.8 | H6 | 0.25-5.1 |
| 1/50 | T7 | 5.8/6.9 | H7 | 0.3-6.2 |
| 1/36 | T8 | 8/9.5 | H8 | 0.4 ~ 8.6 |
| 1/30 | T9 | 9.5/11.5 | H9 | 0.5-10.4 |
| 1/25 | T10 | 11.5/13.7 | H10 | 0.6-12.4 |
| 1/18 | T11 | 15.9/19 | H11 | 0.9-17.3 |
| 1/15 | T12 | 19.3/22.3 | H12 | 1 ~ 20.6 |
| 1/12.5 | T13 | 23/27.4 | H13 | 1.2-24.8 |
| 1/7.5 | T14 | 38.3/45.8 | H14 | 2.1-41.4 |
| 1/5 | T15 | 57.5/68.6 | H15 | 3.1-62 |
| 1/3.6 | T16 | 79.9/95.4 | H16 | 4.3-86.1 |
| 1/3 | T17 | 95.8/114.4 | H17 | 5.2-103.4 |
Ríomh luais an luais sheasta: Luas rothlaithe 1500/1800rpm (50/60Hz), sorcóir tiomána ф82.3, éifeachtúlacht tiomána: 95%
Ríomh luais ar luas athraitheach: luas rothlaithe 2000rpm (50; 60Hz), sorcóir tiomána ф82.3, éifeachtúlacht tiomána: 95%
Drawing3333

Tríd an gcomhoibriú idir an slabhra agus an roth treorach, is féidir an crios a tharraingt agus a...
Tríd an gcomhoibriú idir an slabhra agus an roth treorach, is féidir an crios a tharraingt agus a threorú.
Gnéithe: ualach trom agus luas tapa.
Gné chaighdeánach
| Leithead an Chreasa | 400 | 600 | 800 | 1000 | 1200 | 1400 | 1600 | 1800 |
| Leithead an iompair | 525 | 725 | 925 | 1125 | 1325 | 1525 | 1725 | 1925 |
| An uillinn | 90 | Mótarchumhacht | 370W 、 750W 、 1.1kw 、 1.5kw 、 2.2kw |
| Airde | 550 go 2000 troigh ar airde le | Cumhacht | A (AC110V aon chéim amháin) B (AC200V aon chéim amháin) C (AC200V/380V trí chéim) |
| Luas | Luas seasta | Críoip | Polai (carbazole N-vinile) |
| Cumas | 200kg/tacar (nuair a bhíonn ualach scaipthe go cothrománach) |
De réir mar a chruthaíonn earraí a chruthaíonn earraí, déan 40% de na sonraí cumais a mhaolú le do thoil.
Luas an chreasa
| Cóimheas | Luais luais | Luas seasta 50/60 (Hz) (m/min | Luais luais | Luas athraitheach 50Hz (m/min) |
| 1/2040 | T1 | 2.6/3.0 | H1 | 1.0-2.6 |
| 1/2020 | T2 | 2.8/3.5 | H2 | 1.1-2.8 |
| 1/2000 | T3 | 3.5/4.2 | H3 | 1.4 ~ 3.5 |
| 1/90 | T4 | 4.0/6.7 | H4 | 1.6 ~ 4.0 |
| 1/80 | T5 | 4.4/5.4 | H5 | 1.8-4.4 |
| 1/70 | T6 | 4.9/5.8 | H6 | 2.0-4.9 |
| 1/60 | T7 | 5.8/7.0 | H7 | 2.3-5.8 |
| 1/50 | T8 | 7.0/8.4 | H8 | 2.8 ~ 7.0 |
| 1/45 | T9 | 7.7/9.3 | H9 | 3.1 ~ 7.7 |
| 1/40 | T10 | 8.6/10.5 | H10 | 3.4 ~ 8.6 |
| 1/30 | T11 | 11.6/14.0 | H11 | 4.7 ~ 11.6 |
| 1/25 | T12 | 14.0/16.8 | H12 | 5.6 ~ 14.0 |
| 1/20 | T13 | 17.5/21.0 | H13 | 7.0-17.5 |
| 1/15 | T14 | 23.3/28.0 | H14 | 9.3 ~ 23.3 |
| 1/10 | T15 | 35.0/41.9 | H15 | 14.0-35.0 |
| 1/5 | T16 | 70.0/83.8 | H16 | 28.0-70.1 |
Ríomh luais an luais sheasta: Luas rothlaithe 1500/1800rpm (50/60Hz), sorcóir tiomána ф82.3, éifeachtúlacht tiomána: 95%
Ríomh luais ar luas athraitheach: luas rothlaithe 2000rpm (50; 60Hz), sorcóir tiomána ф82.3, éifeachtúlacht tiomána: 95%
Drawing3333
Cén fáth a mbíonn Tionchar Díreach ag Cothabháil Iompar Roller ar Shaolré an Chórais ...
Léigh TuilleadhCad a Dhéanann Iompróir Sorcóir Dleacht Trom I ndáiríre? Sainmhínítear iompair sorc...
Léigh TuilleadhCad is Iompróirí Rollóra ann agus Cén Fáth a Bhfuil Tábhacht ag an gCineál? Iom...
Léigh TuilleadhCén fáth go bhfanann Iompróirí Sorcóir mar Chnámh droma Láimhseáil Ábhar Iompró...
Léigh TuilleadhCórais iompair na milliúin tonna d’ábhar a bhogadh gach lá trasna monarchana, tr...
Léigh TuilleadhSracfhéachaint ar na Príomhchineálacha Córais Conveyor Belt Iompar crios t...
Léigh TuilleadhCeardaíocht a thabhairt chun cinn sa todhchaí.
Uimh.60, Zhenhu Bóthar Thuaidh, Baile Hudai, Ceantar Binhu, Wuxi 214100, an tSín
+86 139-2153-1116
+86-510-8558 1519/8558 1530
+86-510-8558 1520







